REQUEST A TOUR  If you would like to see this home without being there in person, select the "Virtual Tour" option and your agent will contact you to discuss available opportunities.
 In-PersonVirtual Tour
 
$ 599,900
Est. payment /mo
Active
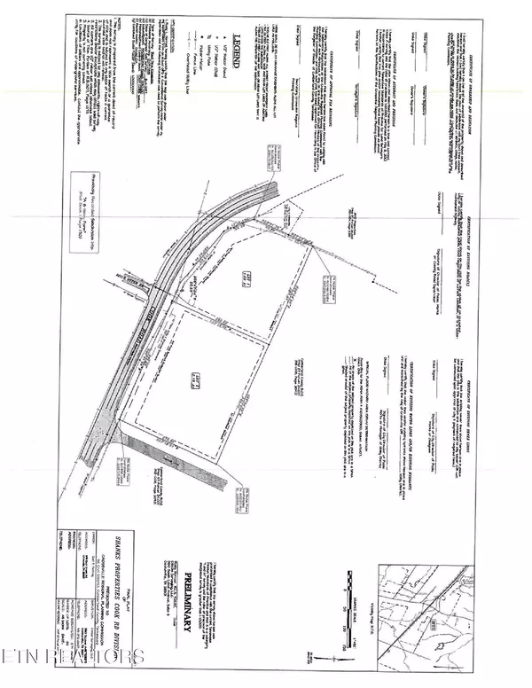
2800 Cook Rd Crossville, TN 38555
2.19 Acres Lot
UPDATED:
Key Details
Property Type Vacant Land
Listing Status Active
Purchase Type For Sale
Subdivision A G Henry Farm
MLS Listing ID 1318629
Lot Size 2.190 Acres
Acres 2.19
Lot Dimensions 345'' x 280'
Source East Tennessee REALTORS® MLS
Property Description
Fantastic commercial opportunity with this 2.19 acres located off Exit 320 @ I-40. This property is surrounded by multiple ''high profile'' businesses such as Buccee's, Starbucks, Pilot Travel Center, Southeastern Retina, etc. Adjacent to Stone Memorial High School & 1/4 mile from  Roane State  Community College creates endless possibilities. Property & price includes a ''shared'' entrance with Southeastern Retina which is already completed and in use. 
Location
State TN
County Cumberland County - 34
Area 2.19
Zoning None
Exterior
Utilities Available Cable TV
Amenities Available Other
Topography [object Array]
Improvements Utilities on Site
Road Frontage , City, Paved
Garage No
Building
Faces Highway 298 North (Genesis Road) to right onto Cook Road. Property and sign on left.
Others
Restrictions Yes
Tax ID Map 087 Parcel 24.02
Acceptable Financing Call Listing Agent, Cash, Conventional, New Loan
Listing Terms Call Listing Agent, Cash, Conventional, New Loan
Listed by Crye-Leike Brown Realty
GET MORE INFORMATION






